James Rossant



BRIARCLIFF MANOR


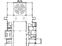
This new sanctuary for the Congregation Sons of Israel at Briarcliff Manor was designed for 200 but is expandable to a congregation 2000 by moving vertical glass doors. The stainless steel cone was designed to bring natural light to the altar; the symbolic stainless steel book expresses the ark within. The expansion of this synagogue includes classrooms and offices. Construction was in 1996.

Reference:


part of the plan for Congregation Sons of Israel at Briarcliff Mansion by James S. Rossant, Conklin + Rossant part of the section for Congregation Sons of Israel at Briarcliff Mansion by James S. Rossant, Conklin + Rossant
Briarcliff Mansion - Plan Briarcliff Mansion - Section
(high-res) (high-res)
(low-res) (low-res)


first exterior view of Congregation Sons of Israel at Briarcliff Manor by James S. Rossant, Conklin + Rossant second exterior view of Congregation Sons of Israel at Briarcliff Manor by James S. Rossant, Conklin + Rossant
Briarcliff Manor - Exterior 1 Briarcliff Manor - Exterior 2
(high-res) (high-res)
(low-res) (low-res)


third exterior view of Congregation Sons of Israel at Briarcliff Manor by James S. Rossant, Conklin + Rossant fourth exterior view of Congregation Sons of Israel at Briarcliff Manor by James S. Rossant, Conklin + Rossant
Briarcliff Manor - Exterior 3 Briarcliff Manor - Exterior 4
(high-res) (high-res)
(low-res) (low-res)


first interior of Congregation Sons of Israel at Briarcliff Manor by James S. Rossant, Conklin + Rossant second interior of Congregation Sons of Israel at Briarcliff Manor by James S. Rossant, Conklin + Rossant
Briarcliff Manor - Interior 1 Briarcliff Manor - Interior 2
(high-res) (high-res)
(low-res) (low-res)


third interior of Congregation Sons of Israel at Briarcliff Manor by James S. Rossant, Conklin + Rossant fourth interior of Congregation Sons of Israel at Briarcliff Manor by James S. Rossant, Conklin + Rossant
Briarcliff Manor - Interior 3 Briarcliff Manor - Interior 4
(high-res) (high-res)
(low-res) (low-res)


dome interior of Congregation Sons of Israel at Briarcliff Manor by James S. Rossant, Conklin + Rossant
Briarcliff Manor - Dome
(high-res)
(low-res)


» return to Architecture »



For more information about this and other projects, please click here to email inquiries.