James Rossant



BUTTERFIELD HOUSE


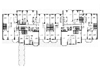
Butterfield House, 37 West 12th Street, New York (map). Construction 1960. This Greenwich Village landmark features two apartment structures built around a mid-block landscape courtyard. The project's planning, bay windows, balconies, and unusual apartment plans have made it lower Fifth Avenue's most desirable building. It was named one of the ten best apartment houses in New York by the New York Times.

Reference:


street photo of Butterfield House by James S. Rossant, Conklin + Rossant street photo of Butterfield House by James S. Rossant, Conklin + Rossant
Butterfield House - Exterior 1 Butterfield House - Exterior 2
(high-res) (high-res)
(low-res) (low-res)


plan of Butterfield House by James S. Rossant, Conklin + Rossant hallway in Butterfield House by James S. Rossant, Conklin + Rossant
Butterfield House - Plan Butterfield House - Hallway
(high-res) (high-res)
(low-res) (low-res)


street photo of Butterfield House by James S. Rossant, Conklin + Rossant street photo of Butterfield House by James S. Rossant, Conklin + Rossant
Butterfield House - Glassway 1 Butterfield House - Glassway 2
(high-res) (high-res)
(low-res) (low-res)


» return to Architecture »



For more information about this and other projects, please click here to email inquiries.